You are here

Beds/Baths

2 BR
2 BA
4 Guests

Search Availability

Description

***A structural repair project is set to begin on April 20, 2026, and will last approximately eight weeks. During construction, active work areas will be safely cordoned off; however, the buildings themselves will not be shut down. Safe pedestrian access to and from the beach will remain available through the normal pathways. During this time guests can expect workmen on site and some noise during working hours.***

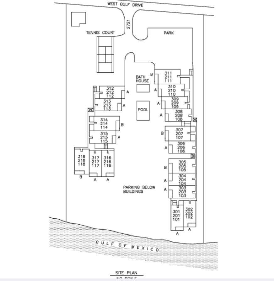
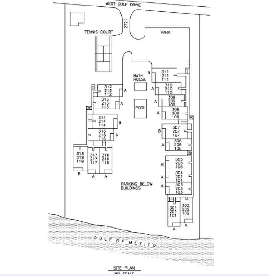
Welcome to Kings Crown 109! Located on the desirable West Gulf Drive, Kings Crown is a 54-unit complex with a community heated pool (NOW OPEN!), tennis courts (no projected completion date) and elevators with under building parking and private storage lockers.

You will switch to vacation mode the moment you enter Kings Crown 109 when you take in the views of the sugar sand beach and turquoise Gulf waters from your extended and spacious lanai. The unit is all brand new with calming beachy decor in shades of soft greens and blues.

Your gourmet kitchen provides everything you need to prepare any meal including a crockpot and panini press. Enjoy your morning coffee (drip or pod maker) at the spacious kitchen island or on the lanai where you can enjoy the sounds of the Gulf and feel the cool breeze. More formal dinners can be enjoyed at the large dining room table.

After a fun filled day of swimming, biking or shelling, you can look forward to relaxing in the living room while watching your favorite movies or shows on the large Smart TV. When it's time to retire, the primary bedroom provides a comfortable king bed, large Smart TV, and en-suite bathroom. The guest bedroom provides 2 twin beds along with a Smart TV and en-suite bathroom, perfect for family or friends joining you on your trip.

The owner provides high speed internet and beach towels. Your beach chairs and umbrella are conveniently stored in a private, ground-level storage locker.

Sanibel Holiday's units are equipped with the latest Wi-Fi enabled locks offering easy check in and check out with no need to pick up or return keys. Everyone in the family can have access with one simple, and most importantly, secure code.

**Kings Crown has temporarily waived the 2-week booking requirement. 1-week bookings are allowed until Nov 15th, 2026. Beginning 11/15/26, booking requirements will once again be: 2-week minimum from November 15 - May 1 and 1-week minimum from May 1 to Nov 15 . Saturday to Saturday bookings always required**
**Smoke free & pet free property**
**Sanibel Holiday cannot offer compensation or refunds due to closed amenities during your stay**
Sanibel Dwelling License # RDWL-011758

Amenities

Living

  • Central Air
  • Ceiling Fans
  • Linens
  • Washer & Dryer
  • Ironing Board
  • High Speed Internet
  • Beach chairs and an umbrella
  • Beach Towels
  • 3 smart tv's with cable

Entertainment

  • Cable TV

Outdoor

  • Shared Pool
  • Beach
  • Screened Lanai
  • Private storage for beach equip

Availability

Key
#Night Available#Night Unavailable#Arrive Only#Depart Only
April 2026
SuMoTuWeThFrSa
 1
2
3
4
5
6
7
8
9
10
11
12
13
14
15
16
17
18
19
20
21
22
23
24
25
26
27
28
29
30
 
May 2026
SuMoTuWeThFrSa
 1
2
3
4
5
6
7
8
9
10
11
12
13
14
15
16
17
18
19
20
21
22
23
24
25
26
27
28
29
30
31
 
June 2026
SuMoTuWeThFrSa
 1
2
3
4
5
6
7
8
9
10
11
12
13
14
15
16
17
18
19
20
21
22
23
24
25
26
27
28
29
30
 
July 2026
SuMoTuWeThFrSa
 1
2
3
4
5
6
7
8
9
10
11
12
13
14
15
16
17
18
19
20
21
22
23
24
25
26
27
28
29
30
31
 
August 2026
SuMoTuWeThFrSa
 1
2
3
4
5
6
7
8
9
10
11
12
13
14
15
16
17
18
19
20
21
22
23
24
25
26
27
28
29
30
31
 
September 2026
SuMoTuWeThFrSa
 1
2
3
4
5
6
7
8
9
10
11
12
13
14
15
16
17
18
19
20
21
22
23
24
25
26
27
28
29
30
 
October 2026
SuMoTuWeThFrSa
 1
2
3
4
5
6
7
8
9
10
11
12
13
14
15
16
17
18
19
20
21
22
23
24
25
26
27
28
29
30
31
November 2026
SuMoTuWeThFrSa
1
2
3
4
5
6
7
8
9
10
11
12
13
14
15
16
17
18
19
20
21
22
23
24
25
26
27
28
29
30
 
December 2026
SuMoTuWeThFrSa
 1
2
3
4
5
6
7
8
9
10
11
12
13
14
15
16
17
18
19
20
21
22
23
24
25
26
27
28
29
30
31
 
January 2027
SuMoTuWeThFrSa
 1
2
3
4
5
6
7
8
9
10
11
12
13
14
15
16
17
18
19
20
21
22
23
24
25
26
27
28
29
30
31
 
February 2027
SuMoTuWeThFrSa
 1
2
3
4
5
6
7
8
9
10
11
12
13
14
15
16
17
18
19
20
21
22
23
24
25
26
27
28
 
March 2027
SuMoTuWeThFrSa
 1
2
3
4
5
6
7
8
9
10
11
12
13
14
15
16
17
18
19
20
21
22
23
24
25
26
27
28
29
30
31
 
April 2027
SuMoTuWeThFrSa
 1
2
3
4
5
6
7
8
9
10
11
12
13
14
15
16
17
18
19
20
21
22
23
24
25
26
27
28
29
30
 
May 2027
SuMoTuWeThFrSa
 1
2
3
4
5
6
7
8
9
10
11
12
13
14
15
16
17
18
19
20
21
22
23
24
25
26
27
28
29
30
31
 
June 2027
SuMoTuWeThFrSa
 1
2
3
4
5
6
7
8
9
10
11
12
13
14
15
16
17
18
19
20
21
22
23
24
25
26
27
28
29
30
 
July 2027
SuMoTuWeThFrSa
 1
2
3
4
5
6
7
8
9
10
11
12
13
14
15
16
17
18
19
20
21
22
23
24
25
26
27
28
29
30
31

Location