You are here

Beds/Baths

2 BR
2 BA
5 Guests

Search Availability

Description

***A structural repair project is set to begin on April 20, 2026, and will last approximately eight weeks. During construction, active work areas will be safely cordoned off; however, the buildings themselves will not be shut down. Safe pedestrian access to and from the beach will remain available through the normal pathways. During this time guests can expect workmen on site and some noise during working hours.***

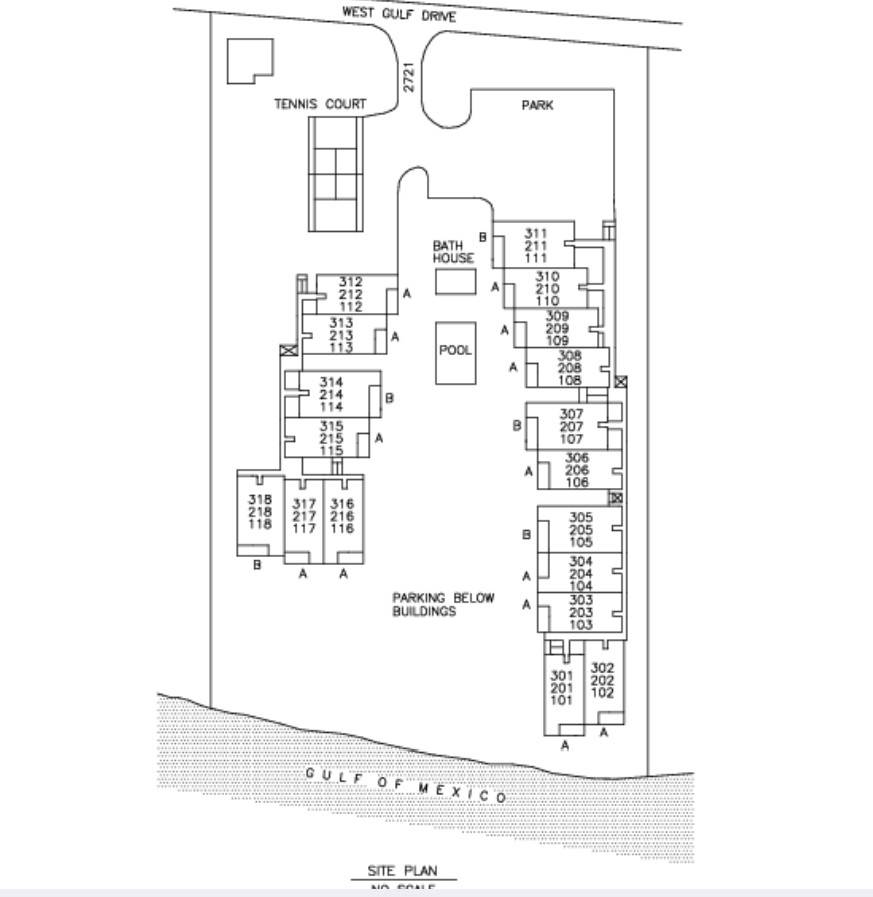
Welcome to Kings Crown 306! Located on the desirable West Gulf Drive, Kings Crown is a 54-unit complex with a community heated pool (NOW OPEN!), tennis courts (no projected completion date) and elevators with under building parking and private storage lockers.

You will switch to vacation mode the moment you enter Kings Crown 306 when you take in the views of the sugar sand beach and turquoise Gulf waters from your extended and spacious lanai. This updated unit, with all new furniture, is done in shades of soft greens and blues and is as beautiful as it is calming.

Your gourmet kitchen provides everything you'll need to prepare all meals. Enjoy your morning coffee (drip or pod maker) at the spacious kitchen island or on the lanai where you can enjoy the sounds of the Gulf and feel the cool breeze. More formal dinners at can be enjoyed at the spacious dining table.

After a fun filled day of swimming, biking or shelling, you can look forward to relaxing in the living room while watching your favorite movies or shows on the large Smart TV. When it's time to retire, the primary bedroom provides a comfortable king bed, large Smart TV, and en-suite bathroom with a large walk-in shower. The guest bedroom provides a queen and additional twin bed along with a Smart TV and en-suite bathroom with a combo tub/shower, ideal for family or friends joining you on your trip. Two adult couples traveling together? This unit is perfect for you, as the set-up is essentially 2 primary bedrooms!

The owner provides high speed internet and beach towels. Your beach chairs and umbrella are conveniently stored in a private ground-level storage locker.

Sanibel Holiday's units are equipped with the latest Wi-Fi enabled locks offering easy check in and check out with no need to pick up or return keys. Everyone in the family can have access with one simple, and most importantly, secure code.

**Kings Crown has temporarily waived the 2-week booking requirement. 1-week bookings are allowed until Nov 15th, 2026. Beginning 11/15/26, booking requirements will once again be: 2-week minimum from November 15 - May 1 and 1-week minimum from May 1 to Nov 15 . Saturday to Saturday bookings always required**
**Smoke free & pet free property**
**Sanibel Holiday cannot offer compensation or refunds due to closed amenities during your stay**
Sanibel Dwelling License # RDWL-005796

Amenities

Living

  • Central Air
  • Washer & Dryer
  • Ironing Board
  • High Speed Internet
  • Beach Towels
  • 3 smart tv's with cable
  • Beach chairs and umbrella

Entertainment

  • Cable TV

Outdoor

  • Shared Pool
  • Screened Lanai

Availability

Key
#Night Available#Night Unavailable#Arrive Only#Depart Only
May 2026
SuMoTuWeThFrSa
 1
2
3
4
5
6
7
8
9
10
11
12
13
14
15
16
17
18
19
20
21
22
23
24
25
26
27
28
29
30
31
 
June 2026
SuMoTuWeThFrSa
 1
2
3
4
5
6
7
8
9
10
11
12
13
14
15
16
17
18
19
20
21
22
23
24
25
26
27
28
29
30
 
July 2026
SuMoTuWeThFrSa
 1
2
3
4
5
6
7
8
9
10
11
12
13
14
15
16
17
18
19
20
21
22
23
24
25
26
27
28
29
30
31
 
August 2026
SuMoTuWeThFrSa
 1
2
3
4
5
6
7
8
9
10
11
12
13
14
15
16
17
18
19
20
21
22
23
24
25
26
27
28
29
30
31
 
September 2026
SuMoTuWeThFrSa
 1
2
3
4
5
6
7
8
9
10
11
12
13
14
15
16
17
18
19
20
21
22
23
24
25
26
27
28
29
30
 
October 2026
SuMoTuWeThFrSa
 1
2
3
4
5
6
7
8
9
10
11
12
13
14
15
16
17
18
19
20
21
22
23
24
25
26
27
28
29
30
31
November 2026
SuMoTuWeThFrSa
1
2
3
4
5
6
7
8
9
10
11
12
13
14
15
16
17
18
19
20
21
22
23
24
25
26
27
28
29
30
 
December 2026
SuMoTuWeThFrSa
 1
2
3
4
5
6
7
8
9
10
11
12
13
14
15
16
17
18
19
20
21
22
23
24
25
26
27
28
29
30
31
 
January 2027
SuMoTuWeThFrSa
 1
2
3
4
5
6
7
8
9
10
11
12
13
14
15
16
17
18
19
20
21
22
23
24
25
26
27
28
29
30
31
 
February 2027
SuMoTuWeThFrSa
 1
2
3
4
5
6
7
8
9
10
11
12
13
14
15
16
17
18
19
20
21
22
23
24
25
26
27
28
 
March 2027
SuMoTuWeThFrSa
 1
2
3
4
5
6
7
8
9
10
11
12
13
14
15
16
17
18
19
20
21
22
23
24
25
26
27
28
29
30
31
 
April 2027
SuMoTuWeThFrSa
 1
2
3
4
5
6
7
8
9
10
11
12
13
14
15
16
17
18
19
20
21
22
23
24
25
26
27
28
29
30
 
May 2027
SuMoTuWeThFrSa
 1
2
3
4
5
6
7
8
9
10
11
12
13
14
15
16
17
18
19
20
21
22
23
24
25
26
27
28
29
30
31
 
June 2027
SuMoTuWeThFrSa
 1
2
3
4
5
6
7
8
9
10
11
12
13
14
15
16
17
18
19
20
21
22
23
24
25
26
27
28
29
30
 
July 2027
SuMoTuWeThFrSa
 1
2
3
4
5
6
7
8
9
10
11
12
13
14
15
16
17
18
19
20
21
22
23
24
25
26
27
28
29
30
31
August 2027
SuMoTuWeThFrSa
1
2
3
4
5
6
7
8
9
10
11
12
13
14
15
16
17
18
19
20
21
22
23
24
25
26
27
28
29
30
31
 

Reviews

Heaven on Earth!

Reviewed on 2022-07-04 by Ellen M. , Wesley Chapel, FL United States
Overall
5
Services from rental manager
5
Cleanliness
5
Location
5
Property condition
5
We loved this place! It was our first time staying here and everything was just perfect! A clean and beautiful place with a nice view of the water! We immediately booked again for next year! Can’t wait!! Some of our favorite places to eat are Doc Fords, 400 Rabbits, the Great White Grill and Joey’s Custards! We had such a great time!

KC 306

Reviewed on 2022-03-17 by , Cambridge, Ontario Canada
Overall
5
Services from rental manager
5
Cleanliness
5
Location
5
Property condition
5
Great

Kings Crown 306

Reviewed on 2021-12-06 by , Fuquay-Varina, NC United States
Overall
5
Services from rental manager
5
Cleanliness
5
Location
5
Property condition
5
Gorgeous condo with beautiful decor and fabulous gulf view. Spacious unit for 6 adults. Fully supplied kitchen, beach chairs etc. Easy checkin and out. Door key code entry is great.

Kings Crown 306

Reviewed on 2021-12-06 by Gloria W. , Fuquary Varina, NC United States
Overall
5
Services from rental manager
5
Cleanliness
5
Location
5
Property condition
5
Gorgeous condo with beautiful decor and fabulous gulf view. Spacious unit for 6 adults. Fully supplied kitchen, beach chairs etc. Easy checkin and out. Door key code entry is great.

Location